0
Skip to Content
Home
Services
Contact
Projects
Open Menu
Close Menu
Home
Services
Contact
Projects
Open Menu
Close Menu
Home
Services
Contact
Projects
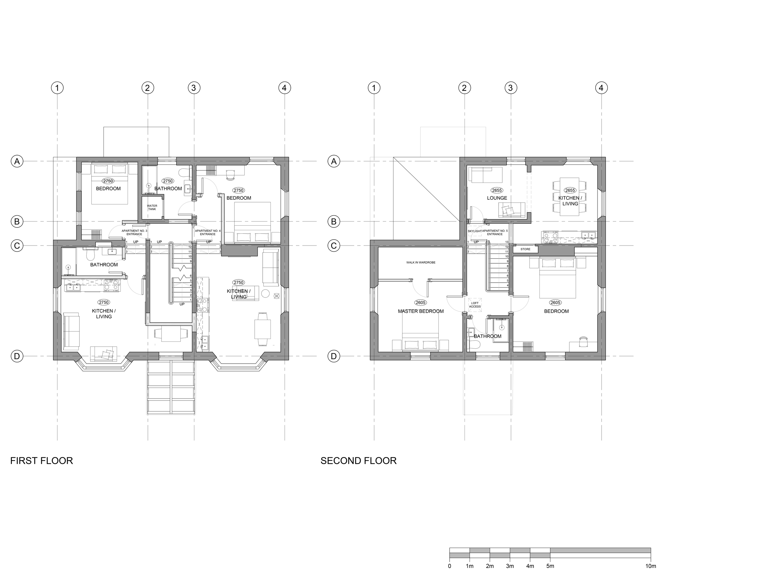
Services: Concept Design, Feasibility Drawings
Park Rd.